CISCO  Threaded Case Study

     zerrulea.gif (570 bytes)

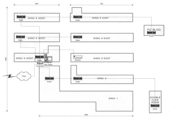
                                  Building Layout

pic02.gif (52823 bytes)    Spinning.gif (2229 bytes)