BROWSE THE DESIGN WORKS! DATABASE

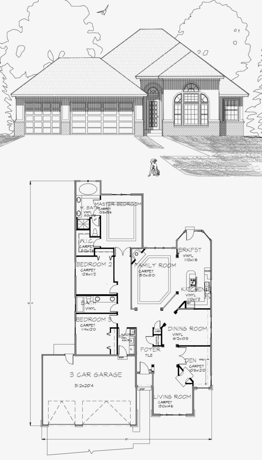
Plan Lgy8-1999-008

BACK A PLAN

NEXT PLAN

 

 

 

BACK TO THE HOME PAGE