Propiedades inmobiliarias en Alicante

Nuevas propiedades

 

 
E-mail

Residencial CANASTELL
San Vicente-Alicante

 
VIVIENDAS DE TRES DORMITORIOS EN URBANIZACION PRIVADA CON PISCINA, JUEGOS INFANTILES, GARAJE, TRASTERO, VIDEO-PORTERO, ANTENA PARABOLICA

| Situación | Precios |
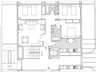
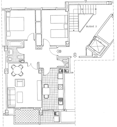
Planos: | Vivienda tipo B | Vivienda tipo C | Piso atico | Planta baja | Planta tipo |

CARACTERISTICAS DE LA EDIFICACION

La estructura es reticular, de hormigón armado, calculada contra acciones sísmicas y de viento, las fachadas de fábrica de ladrillo a cara vista con carpintería de aluminio laceado, vidrios con doble cristal y aislamiento térmico y acústico. Las separaciones entre viviendas se realizan con ladrillo perforado de 12 cm y las divisiones interiores con ladrillo de 7 cm.
Las viviendas constan de un Salón-comedor, con ventanal y terraza a fachada, tres dormitorios dobles, todos ellos con armarios empotrados y forrados interiormente, dos baños completos, con sanitarios de primera marca y griferías monomando, uno de ellos incorporado al dormitorio principal, la cocina con muebles altos y bajos con encimera y equipada con fregadero, horno, placa de cuatro fuegos, campana extractora de humos e instalación para lavavajillas y una galería totalmente alicatada, con pila de lavar de porcelana e instalación para lavadora.
Los pavimentos son de gres de primera calidad en formato grande. La carpintería interior de madera de Mobi1a lacada con hojas molduradas y la puerta exterior, blindada, con cerradura de seguridad. Los vestíbulos, pasillos, baños y cocinas tienen techo de escayola. La pintura es de gotele plastificado y las viviendas están provistas de instalación de calefacción para radiadores de agua caliente con caldera mixta de gas propano e instalación centralizada del mismo con contadores individualizados, instalación eléctrica según normas del Reglamento de baja tensión para 5 kw. por vivienda con mecanismos de primera calidad, instalación de fontanería en cobre y desagües de PVC, instalación de telefonía previa con dos tomas por vivienda e instalación de antena colectiva, antena parabólica. UHF, VHF, Y FM con dos tomas por vivienda.
Cada escalera tiene un ascensor para 6 personas con puertas automáticas, Portero Automático con vídeo-portero, dos depósitos de reserva de agua con grupo de presión y el zaguán lujosamente decorado. En la planta de sótano hay una plaza de garaje y un trastero cerrado para cada vivienda, con acceso directo por el ascensor y la escalera a las mismas. La urbanización privada y cerrada consta de jardines, piscinas, con vestuario-aseo y zona de juego para niños.

 

 
   
   
   
 

 

Inicio | Compra | Alquiler turistico | Propuestas en venta

 
API Carmen Mozos
Agencia ALICOSTA

1998-2000