DAVID L. BETZ ARCHITECT, INC.

Hospitality

When developing a project for Hospitality, I gather information, ideas, codes, functions, inter-relationships, operation, users, time factors, construction types, cost standard, specialties and amenities to make a great project.

Let me help you to develop your new hotel.

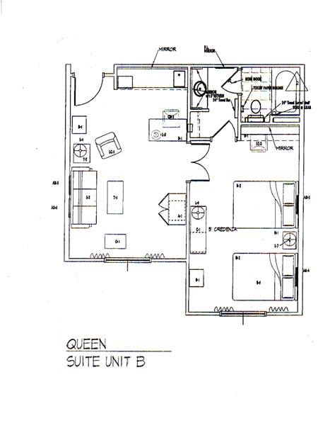
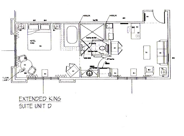
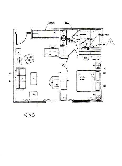
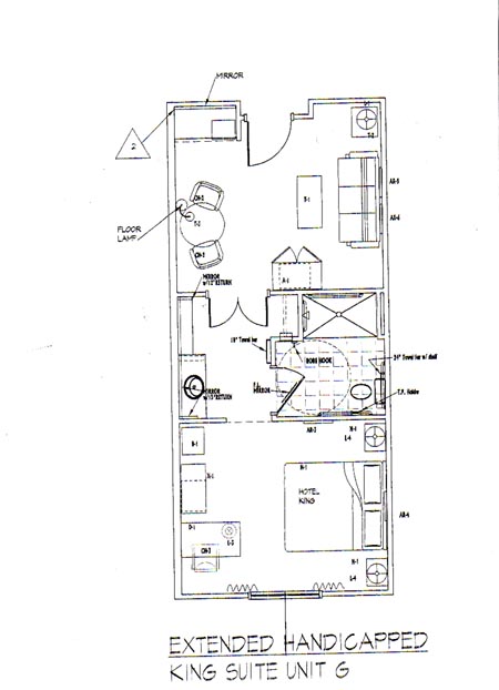
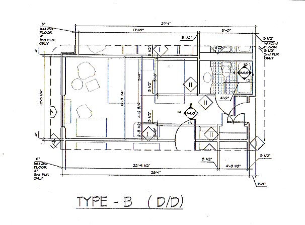
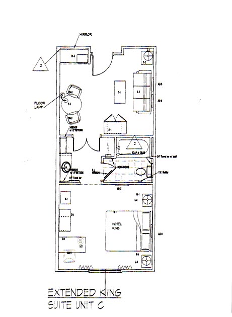
CLICK ON THE PICTURES BELOW FOR A CLOSER VIEW




HOME
Valid XHTML 1.0! Valid XHTML 1.0!