Home


 

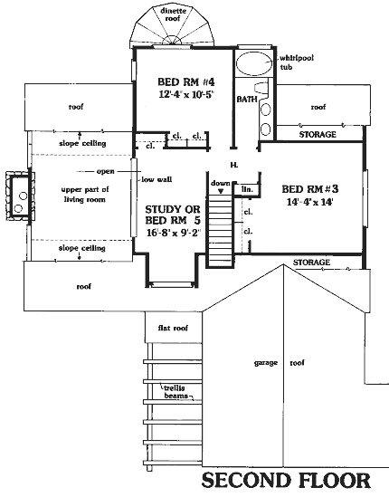
    The outdoor trellis leads to the front entrance into an energy-saving vestibule. The dramatic combined living room and dining have a 16-foot ceiling and high windows flanking a natural stone, heat/circulating fireplace. A large outdoor terrace is reached through sliding glass doors of the dining room or from the fully windowed semi-circular dinette adjoining the kitchen. Two bedrooms are located on the first floor sharing a luxurious bath with a whirlpool tub and two sinks set in a long counter. Bedrooms three and four are located upstairs with bedroom five, which can also be used as a den, open to the living room below. Here too is another large bath with two sinks and an oval whirlpool tub.

 

Living area(sq ft)

Rooms

Foundations

 

 

Main:

1345

 

Bedrooms: 4-5

Width:49'0''

 

 

Upper:

656

 

Full baths: 2

Depth:58'0''

 

 

Total:

2001

 

Half baths: 0

 

 

 

 

 

Car stalls: 2